Xətai Plaza binası
Xətai Plaza loqo

RAHAT OFİS MƏKANI

Daha çox göstər

daha çox göstər

Xətai Plaza ağ-qara görüntü
Xətai Plaza loqo

Xətai Plaza 2009-cu ildə istifadəyə verilib və 13 mərtəbədən, o cümlədən 1 mərtəbə yeraltı qarajdan ibarətdir.

2009

İNŞAAT İLİ

13

MƏRTƏBƏ

6545

M2 SAHƏ

65

PARKİNQ

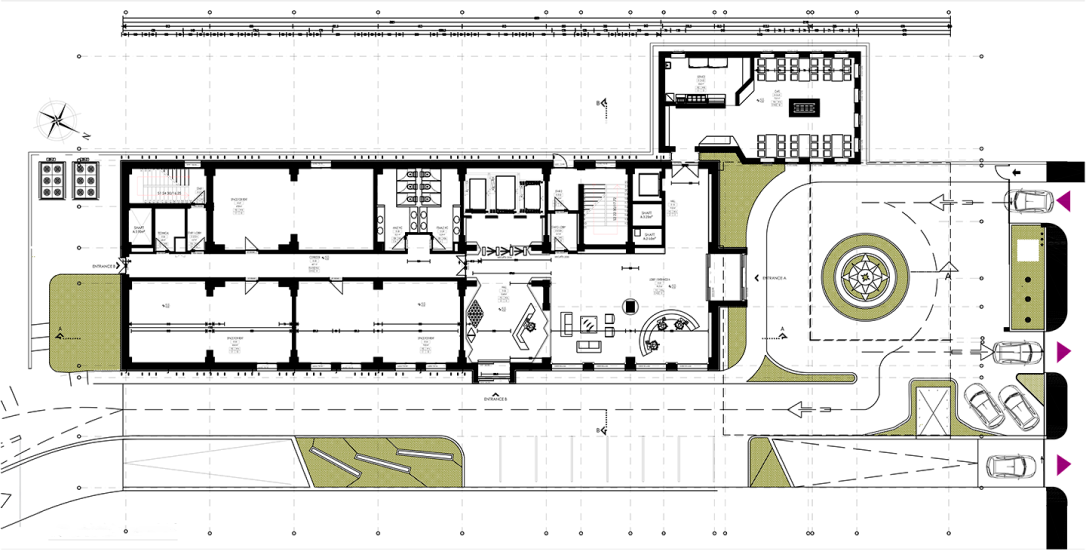
BİRİNCİ MƏRTƏBƏNİN PLANI

Xətai Plaza birinci mərtəbənin planı

XƏRİTƏDƏ BİZİ TAPIN

Xətai Plaza əlaqə şəkli